联系我们
上海中美自控阀门有限公司
公司电话:021-66368888
公司传真:021-51686637
邮箱:2880665957@qq.com
地址:月浦工业区园和路301号
快速报价通道
扫一扫,立刻获取价格
| 外观精美,耐用 | |
| 结构紧凑,效率高 | |
| 产品经久耐用 不易损坏 | |
| 维修方便,操作简单 | |
-

技术规范
设计依据
GB标准
设计标准
GB/12237
结构长度
法兰连接
OVQB标准
连接法兰尺寸
GB/9113、JB/T79
实验和检验
JB/T9092
技术参数
公称通径
DN15~150mm
连接方式
对夹
气缸配置
ZMA执行器
气缸形式
双作用、单作用(弹簧复位)
控制方式
开关型、调节型
公称压力
10、16、25、40bar(如需更高压力订货时请注明)
气源压力
双作用:4~8bar、单作用:5~8bar
环境温度
标准型:-20~80℃
阀体材质
碳钢(C)、不锈钢(304、316、316L)
密封材质
聚四氟乙烯(F)、对位聚苯(PPL)、金属硬密封(H)、硬质合金(Y)
备注:其它特殊密封材质或特殊温度亦可根据客户要求设计制造
-
薄型米兰体育在线登录入口-米兰(中国) 性能规范:
气动执行器的主要参数:
气动执行器的主要零部件材料:
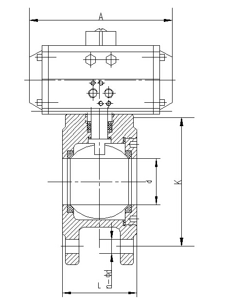
外形尺寸图:
| 同系列产品 | ||||
|




